top of page

Under Construction

5342 Bonita

PROPERTY DESCRIPTION

Ready in Spring of 2026

E-BROCHURE
VIDEO TOUR
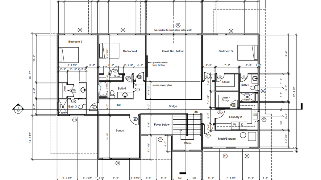
FLOOR PLAN

PROPERTY DETAILS

5342 Bonita Road, Lake Oswego, OR, USA

SIZE

4,929 SF

LOT SIZE

BEDROOMS

5 BR

FLOORS

2

BATHROOMS

5 BA

YEAR BUILT

LISTING AGENT or CONTACT

For more information on this home

bottom of page